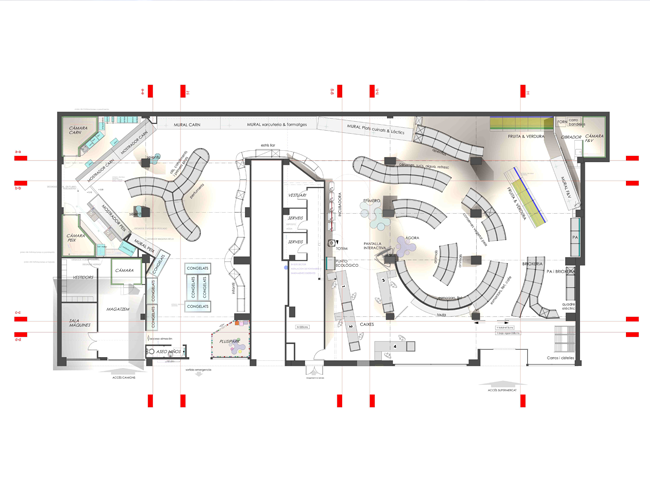
Local comercial sector alimentación. Desarrollo de nuevo concepto de imagen para AM Asociados.
Innovador concepto de imagen e implantación para cadena de supermercados. Objetivo: disfruta tu compra rápida . El producto local se integra con nuevas tecnologías. Diferente!