A!
Emotional
living & work
sobre mi
- 
proyectos
- 
blog
- 
novedades
- 
amigos
- 
contacto
‹
›
‹
›
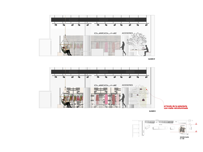
Retail international brand. Desarrollo de nuevo concepto de imagen para AM Asociados.
Inspirados en el Mediterráneo, conseguimos un nuevo concepto eco´friendly para 1ª firma de retail catalana de expansión mundial.